APPARTEMENT T2 A LOUER - LYON 3EME ARRONDISSEMENT - 46.45 m2 - 760 € charges comprises par mois
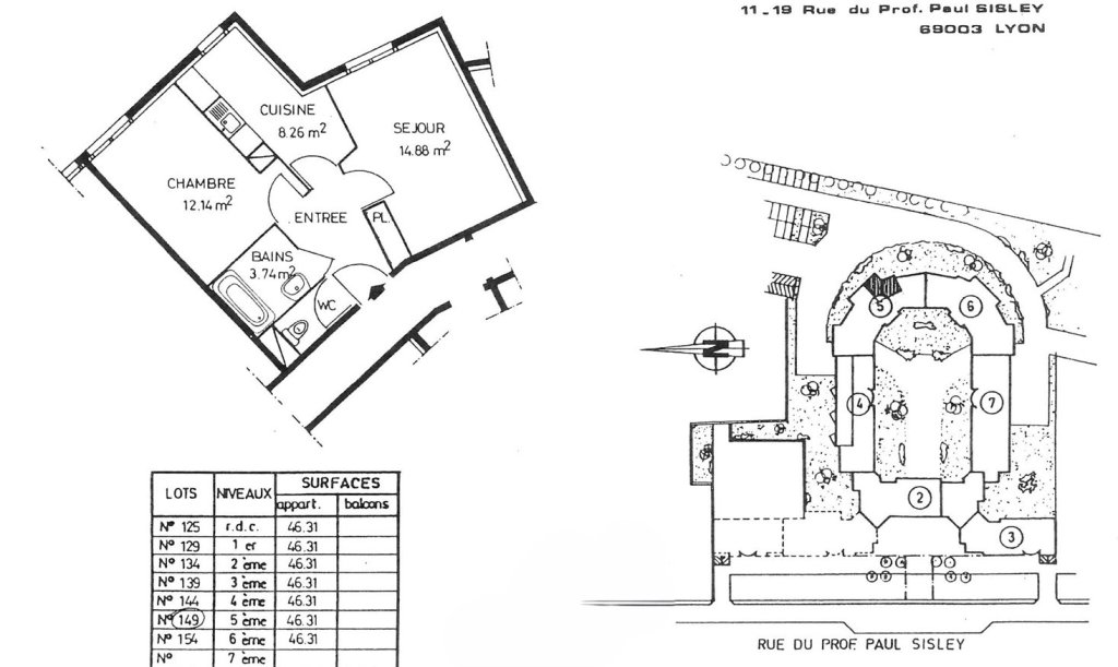
LYON 3 / PARC SISLEY - TRAMWAY DAUPHINE LACASSAGNE
LYON 3 / PARC SISLEY - TRAMWAY DAUPHINE LACASSAGNE
T2 de 46,45 m² situé au 5ème étage avec ascenseur, dans un bel immeuble récent avec espaces verts, à deux pas du Parc SILSLEY.
Il se compose d'un séjour, d'une cuisine, d'une chambre, d'une salle de bains et WC indépendant.
A cela s'ajoute un parking en sous-sol pour 60 €/mois.
Disponibilité immédiate
Chauffage individuel électrique
Eau froide collective
Eau chaude individuelle électrique
Loyer hors charges : 700,00 €
Provision sur charges : 60,00 €
Dépôt de garantie : 700,00 €
Honoraires de location : 464,50 €
Frais d'état des lieux : 139,35 €
Zone soumise à l'encadrement des loyers
Loyer médian : 13,60 €/m²
Loyer majoré : 16,30€/m²
Complément de loyer (inclus dans le loyer) : 0 €
Les informations sur les risques auxquels ce bien est exposé sont disponibles sur le site Géorisques: www.georisques.gouv.fr
Les informations sur les risques auxquels ce bien est exposé sont disponibles sur le site Géorisques : www.georisques.gouv.fr
Réf : 321
Disponibilité
26/10/2025
Caractéristiques







Aménagements
- chauffage : individuel electrique
Informations financières
- loyer mensuel charges comprises : 760 €
- dont provision mensuelle des charges locatives : 60 € (régularisation annuelle)
- honoraires charge locataire TTC : 603,85 €
- dont pour l'état des lieux : 139,35 €
Imprimer la ficheVoir nos prestations et tarifs
Classe énergie et classe climat
dont émissions de Gaz à effet de serre
En savoir plus
Classe énergie et classe climat


Montant estimé des dépenses annuelles d'énergie
Les dépenses d'énergie sont estimées entre 520 € et 760 € par an selon l'année de référence .
Estimation de dépenses en fonction du logement et pour une utilisation standard sur 5 usages (chauffage, eau chaude sanitaire, climatisation, éclairage, auxiliaires).
L'agence
Ciléad
34 Cours Lafayette
69003 LYON 3EME ARRONDISSEMENT
Tél : 0675781262
Contactez-nous
pour visiter ce bien
Ecoles, transports, sorties et commerces sur LYON 3EME ARRONDISSEMENT (69003)
Lyon 3eme Arrondissement est une ville de 101 302 habitants. Côté immobilier, les habitations sont réparties en 4 % de maisons et 96 % d'appartements.
En savoir plus sur Lyon 3eme Arrondissement